Address

23rd Ave & Union St., Seattle, WA

Expected completion date winter 2027

  • Affordable + Market-Rate Mixed-Use Redevelopment

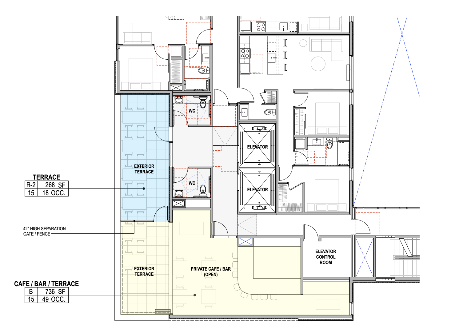
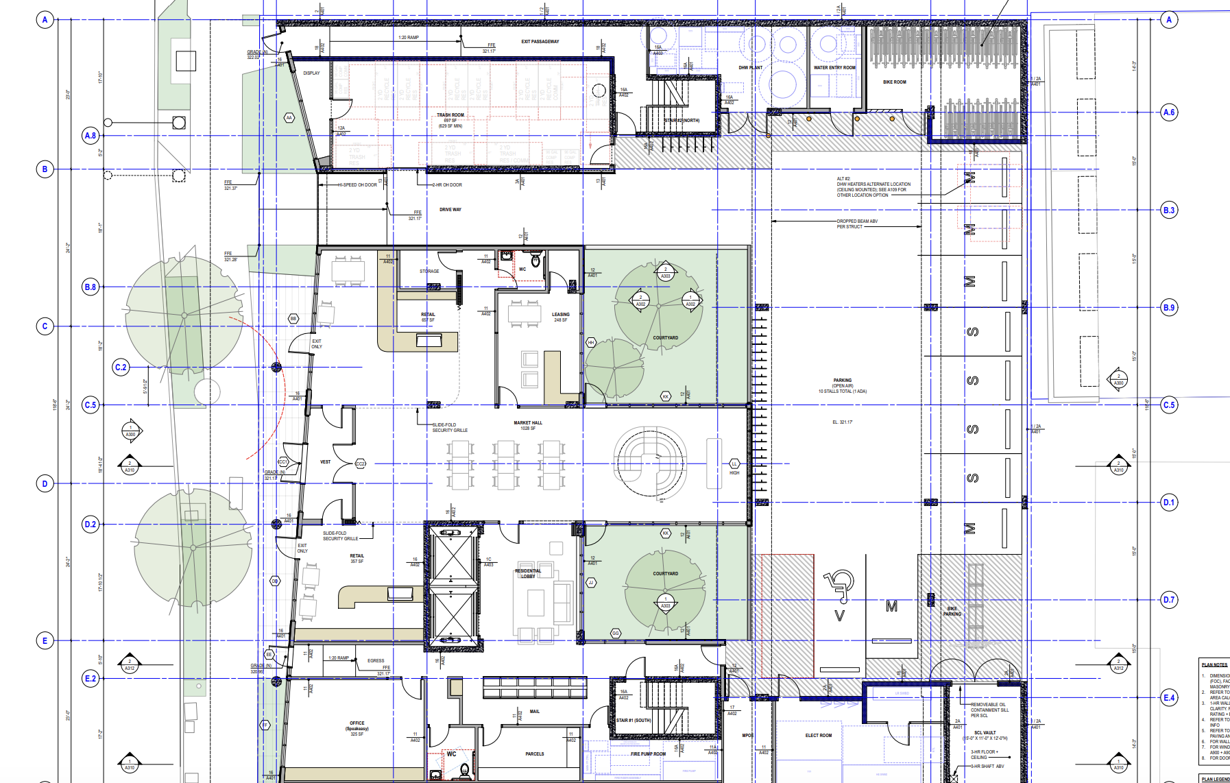
  • 117 apartment homes (mixed-income, studios to two-bedroom)

  • 8 Stories

  • $50 million (mixed-use, equity-driven housing).

  • Lead Developer in equity partnership with Heartland; securing affordable units via city MHA; named in honor of Sarah Queen Gardner; creating mixed-income housing, retail/live-work space, and community access.

This 117-unit, affordable-by-design housing community is a forward-looking tribute to cultural integrity, legacy, and inclusive growth. Thirty percent of the homes will be affordable to residents earning 80% or below of the area median income (AMI), ensuring that longtime community members and future generations alike can continue to call the Central District home.

Blending thoughtful architecture, interior design affordability, and cultural preservation, The Sarah Queen embody a vision of equity-driven development — one that celebrates the neighborhood’s history while building pathways for lasting opportunity and belonging.

Sarah Queen Apartments

Next
Next

Skyway